Portfolio
EP.
Portfolio
EP.
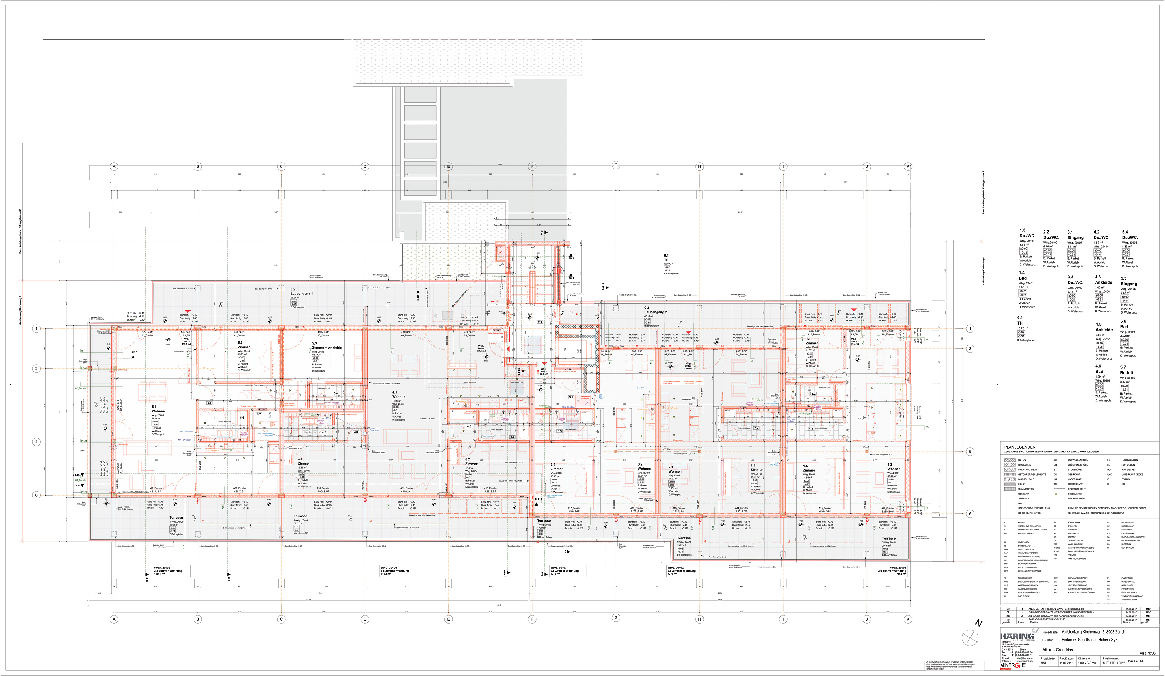
Anbau Zuerich
bei Häring AG - Eiken 2017
• Erstellung von Plänen unter Verwendung von Holzbautechnologie.
• BIM-Koordination und -Anwendung in sämtlichen Projektphasen
• Projektphasen
:
51 Ausführungsprojekt
You may also like
Werkhalle Anbau Trammstr.60 Münchenstein
2024
MFH. Ambach Ettingen BL
2024
Dome Aesh AG
2024
NEU Dreispitz Basel
2024
Warschau Praga Nord Wettbewerbe
2024
Gdansk / Danzig Wettbewerbe
2024
Flughafen
2021
EFH. Village Neuf / France
2024
EFH. Berryhouse
2020
MFH. Ettingen BL
2024
↑
Back to Top