Portfolio
EP.
Portfolio
EP.
Flughafen
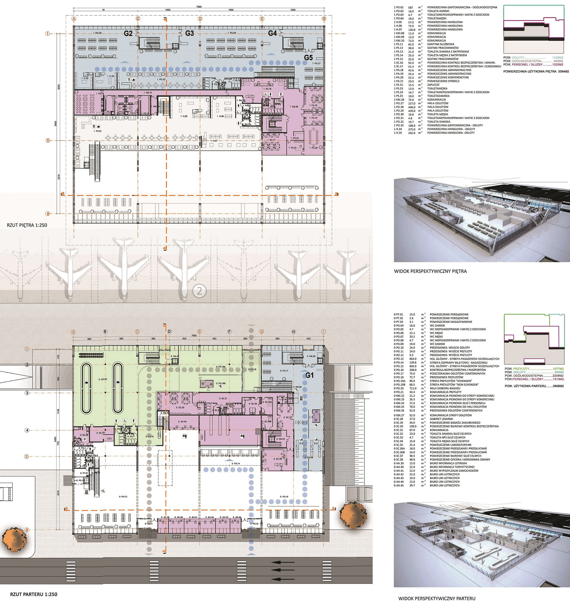
Kamine Slaski / Poland
You may also like
Werkhalle Anbau Trammstr.60 Münchenstein
2024
MFH. Frenkendorf BL
2024
EFH. Village Neuf / France
2024
NEU Dreispitz Basel
2024
Gdansk / Danzig Wettbewerbe
2024
EFH. Berryhouse
2020
Neubau Sperrstr. Basel
2024
6 EFH. Niederlenz
2024
Umbau Rosentalstr. Basel
2024
Anbau Zuerich
2024
↑
Back to Top